See all 30 photos
  • 2 Reception Rooms
  • 3 Bedrooms
  • 2 Bathrooms
SSTC

3 Bed House - End Terrace 

Heol Ty Draw, Barry, CF62 5DU
Chain Free £315,000

About the Property

**NO CHAIN** This beautifully presented and much loved end of terrace Town house having been constructed by Taylor Wimpey May 2020 and offering NHBC guarantees. Situated at Barry’s Harbourside offering panoramic scenic waterside views. Viewing is essential to appreciate. The property has close walks with purpose made paths around the estate leading to Asda and to Barry Island. The award winning ‘Good-sheds’ is in close proximity.

Briefly comprising, entrance hallway, kitchen/dining area, sitting room with enclosed balcony and w.c./cloakroom. To the first floor, living room with balcony with far reaching views over the waterside, family bathroom and double bedroom. To the second floor, Master Bedroom with en-suite and a Juliet balcony with far reaching views over the waterside, and a further double bedroom. To the front, driveway providing ample parking for two vehicles. Gas central heating via combination boiler and UPVC double glazing throughout.

  • TOWN HOUSE
  • THREE DOUBLE BEDROOMS
  • HARBOURSIDE WATER VIEWS
  • SPACIOUS LIVING SPACE
  • KITCHEN/DINING AREA
  • ENCLOSED BALCONIES
  • DRIVEWAY'S FOR TWO CARS
  • GCH & UPVC D/G THROUGHOUT
  • ER-B

Virtual Tour

Details

Location: Heol Ty Draw, Barry, Vale of Glamorgan, CF62 5DU
Reception Rooms: 2
Bedrooms: 3
Bathrooms: 2
Council Tax Band: E
Tenure: Freehold

Property Details

FRONT

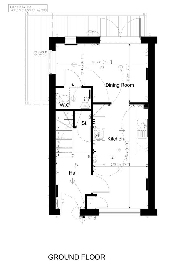
Driveway leading for two cars. Composite double glazed front door to entrance hallway. Side access to storage area.

Entrance Hallway

1.75m x 4.01m (5'09 x 13'02 )
Smoothly plastered ceiling, smoothly plastered walls, wood laminate flooring, wooden door leading to under stairs storage. Fitted carpet staircase rising to the first floor. Composite UPVC double glazed front door leading from front drive area. Wooden door leading to kitchen.

Kitchen / Dining

2.74m x 5.23m (9'00 x 17'02)
Smoothly plastered ceiling with vent extractor, smoothly plastered walls, wood laminate flooring, wall mounted radiator. UPVC double glazed window to the front elevation. Built-in storage housing a wall mounted combination boiler. Modern fitted kitchen, comprising of wall and base units. Wood laminate worktops, stainless steel sink, integrated induction hob, integrated fan assisted oven, ceramic tiled splashback's. Space for washing machine, space for tumble dryer, space for fridge freezer. Ample room for dining furniture, through opening to sitting area with views over the waterside.

Sitting Room

2.90m x 4.60m (9'06 x 15'01)
Smoothly plastered ceiling, smoothly plastered walls, wood laminate flooring, wall mounted radiator. UPVC double glazed window. UPVC double glazed patio doors leading to a ground floor balcony with far-reaching views over the waterside and promenaded. Through opening to kitchen.

W.C. Cloakroom

1.07m x 1.73m (3'06 x 5'08)
Smoothly plastered ceiling with vent extractor, smoothly plastered walls, porcelain tiled flooring, wall mounted radiator. Pedestal wash hand basin, close coupled toilet. Wooden door leading to the sitting room.

FIRST FLOOR
First Floor Landing

2.82m x 2.03m (9'03 x 6'08)
Smoothly plastered ceiling, smoothly plastered walls, wall mounted radiator, fitted carpet flooring, fitted Carpet staircase rising to the second floor and descending to ground. Wooden doors leading through to the main bathroom, living room and bedroom three.

Living Room

3.25m x 4.62m (10'08 x 15'02)
Smoothly plastered ceiling, smoothly plastered walls, fitted carpet flooring, wall mounted radiators. UPVC double glazed window with far reaching views of the waterside. UPVC double glazed patio doors leading out onto a balcony with far-reaching views of the waterside and promenade. Wooden door leading out to the first floor landing.

Family Bathroom

1.70m x 2.11m (5'07 x 6'11)
Smoothly plastered ceiling with vent extractor, smoothly plastered walls, porcelain tiled flooring, wall mounted radiator. Ceramic tile splashback's. Pedestal wash hand basin, close coupled toilet, bath. Wooden door leading out to first floor landing.

Bedroom Three

2.74m x 4.60m (9'00 x 15'01)
Smoothly plastered ceiling, smoothly plastered walls, fitted carpets flooring, wall mounted radiator. UPVC double glazed window to the front elevation. Built-in double wardrobe. Wooden door leading out to the first floor landing.

SECOND FLOOR
Second Floor Landing

2.03m x 2.74m (6'08 x 9'00)
Smoothly plastered ceiling with loft access, smoothly plastered walls, fitted carpet, fitted carpet staircase rising from the first floor, wall mounted radiator. Wooden door leading to the master bedroom with en-suite. Further wooden door leading to bedroom two. Built in storage.

Master Bedroom

3.28m x 4.60m (10'09 x 15'01)
Smoothly plastered ceiling, smoothly plastered walls, fitted carpet flooring, wall mounted radiator. UPVC double glazed window with far reaching views of the waterside. UPVC double glazed patio doors opening out on to a Juliet balcony with far-reaching views of the waterside. Built in double wardrobes. Wooden door leading leading to the en-suite bathroom. Further wooden door leading out to the second floor landing.

En-Suite

1.78m x 2.03m (5'10 x 6'08)
Smoothly plastered ceiling with vent extractor, smoothly plastered walls, porcelain tiled flooring, ceramic tiled splash backs, wall mounted radiator . Shower enclosure with mains powered shower overhead, pedestal wash hand basin, close coupled toilet. Wooden door leading out to the master bedroom.

Bedroom Two

2.77m x 4.60m (9'01 x 15'01)
Smoothly plastered ceiling, smoothly plastered walls, fitted carpet flooring, wall mounted radiator. UPVC double glazed window to the front elevation. Wooden door leading out to the second floor landing.

REAR

Waterside views of the docks. Promenade walks along side the quay side.

COUNCIL TAX

Council tax band E

DISCLAIMER

The prospective purchaser's attention is drawn to the following points: We reiterate that room measurements are very approximate, as the room dimensions are in some instances irregular, due to the period and individual nature of the property. 1. These sales particulars have been carefully checked with the owner/seller of the property. If there is any point which is particularly important, please ask. Whilst given in good faith they should not be construed as statements of fact and are provided for guidance only, they do not constitute any part of an offer or contract. 2.When considering making an offer on this property it is advisable to double check all measurements and point of particular importance to you. 3.All measurements and details of location are approximate only. 4. The photographs show only certain parts and aspects of the property at the time they were taken. 5. Buyers are advised to contact a solicitor to obtain verification of tenure and a surveyor to check that appliances, installations and services are in satisfactory condition. 6. Anyone wishing to view the property must provide their name, address and telephone number to safeguard the well being of owner/seller and staff.

MORTGAGE ADVICE

Choosing a mortgage will be one of the largest financial decisions you will make. To assist you with this process we have an independent mortgage specialist at our sales office in Barry. If you should choose to use these services they will be completely confidential and without obligation.

PROCEEDS OF CRIME ACT 2002

Nina Estate Agents are obliged to report any knowledge or reasonable suspicion of money laundering to NCA (National Crime Agency) and should such a report prove necessary may be precluded from conducting any further work without consent from NCA.

TENURE

We have been advised that the property is Freehold. You are advised to check these details with your solicitor as part of the conveyancing process.

Floorplans

Energy Performance Certificates

EPC

Location Map

Enquire / Book Viewing

  • arrange a viewing
  • arrange a valuation
  • be sent further property details